NEWS
新闻资讯2022-06-17 09:29:53来源:
一、前言
目前,随着科学技术的发展,市场经济的日新月异,电机行业竞争越趋激烈,随着国家节能减排的要求,相比压铸行业,传统的铸铁铸造行业,能耗高、效率低、劳动强度大等特点,在节能减排的要求下,需要对传统的铸造行业进行整改;同时随着老一代工人的老去,越来越多的年轻人不在选择从事传统铸造行业。故生产采购成本越来越高,采购周期越来越长,不利于电机行业的发展,随着压铸行业的兴起,传统的铸铁零件逐渐向压铸铝零件过渡,由于压铸铝零件毛坯尺寸稳定,毛坯零件余量少,生产效率快,制作周期短,越来越受到电机生产厂家的青睐,但目前在电机生产厂家及电机铝机壳相关的配套行业内,铝机壳的加工还是跟常规的铸铁机壳的加工基本一致,生产效率低,每个外止口铝壳的加工均需要两次装夹 ,才能完成加工。在日益竞争激烈的市场经济下效率就是金钱,降低生产成本,提高生产效率才能使企业立于不败之地;对此这里以外止口铝壳加工为例进行工艺工装的优化,从理论分析到前期工艺策划,到加工装夹工装、刀具图纸设计,生产加工、零件质量确认最后进行数据分析推广。
二、前期的工艺分析策划
1、现场用常规的加工工艺对铝壳机座进行加工,分析收集数据。常规铝壳加工的大体工艺路线为两种,一种是直接先加工铝壳,铝壳成品供应;另一种是先加工铝壳铁芯档后在进行热套有绕组定子,待有绕组的定子安装到位后在以定子铁芯内圆为基准加工两端止口;针对第一种加工方式如图2.1所示:第一步、先夹持机壳内孔车一头的白段、止口、止口平面;第二步、钻攻已加工面的搭子孔,第三步、以已加工的这头止口及止口平面为基准,搭子孔紧固,安装到加工衬片上进行另一头的止口、止口端面、白段、铁芯档的加工;完成零件加工,据现场收集铝壳零件加工的尺寸数据,由于机壳在加工的过程中两次装夹的容易存在装夹误差,导致两端止口不同心的情况发生。不利于电机质量的提升,同时加工一个零件所需要的时间跟相同规格铸铁机壳精车的时间差不多,所以这种加工方式质量不稳定,加工效率慢。第二种加工方式如图2.2所示:第一步、先夹持机壳内孔,加工一头的白段、端面;第二步、钻攻已加工一端的搭子孔;第三步、已加工的白段止口定位,车机壳另一端白段、铁芯档,第四步、安装绕组定子铁芯;第五步、以定子铁芯内孔为基准加工铝壳两端止口,这种加工方式质量比第一种稳定,质量好,但加工的效率相比第一种慢,加工时需要对绕组的端部进行防护,同时定子铁芯安装后加工,装夹拆卸时困难,操作工劳动强度大,同时不利于铝壳配套单位的加工及供货,所以也存在一定缺陷;两种常用的加工方式,每个机壳的加工都需要经过两次装夹,两次加工才能完成,同时中间过程还需要经过钻孔等工序间的周转,所以在生产效率上、制作周期上存在很大的不足;

图2.1,第一种铝壳的常规加工方式

如图2.2所示,第二种带绕组定子铝壳的加工方式
2、对铝机壳的外形结构如图2.3所示,进行分析,寻找一种好的加工装夹方式,提升加工质量与效率,经过实地的考察及翻阅相关的电机制造工艺的书籍,结合铝壳机座自身重量轻,尺寸稳定,毛坯余量少的特点,对外止口铝机壳的加工工艺及工装刀片进行工艺改进;从零件加工质量及效率的角度出发,最好能实现一次装夹一刀加工,即一刀通工艺;在保证质量的同时提升加工的效率,所以从这质量与效率这两方面策划,确认对外止口的铝壳加工工艺工装进行改进,特别是装夹工装、加工刀具的设计与制作。

图2.3、外止口铝壳结构
三、工装的设计及制作
1、装夹工装的设计,结合所加工铝壳的质量轻、余量少、尺寸稳定等结构特征,设计一种专用于外止口铝壳机座加工的装夹工装,经过反复的研究、分析,确认采用笼型式的装夹结构;如图3.1所示。包括:固定板a、固定板b、压板紧固螺钉、压板、支撑块固定螺钉、左上定位支撑块、右上定位支撑块、右下定位支撑块、左下定位支撑块等,在设计的时候需要考虑到零件的的外形,在固定板b、压板上需要设计避开出线座的避开槽;在四个支撑块上分别设计铝壳的定位台阶面及加工刀具的让刀槽;在压板上再设计定位台阶,便于零件的轴向压紧。同时在固定板a、固定板b上设计四个定位支撑块的安装定位槽,便于支撑块安装定位,保证工装的装配精度,从而保证零件的装夹精度。

图3.1外止口铝壳机座加工专用笼型工装
1—固定板a 2—固定板b 3—压板紧固螺钉 4—压板 5、6—支撑块固定螺钉
7—左上定位支撑块 8—右上定位支撑块 9—右下定位支撑块 10—左下定位支撑块
2、装夹工装的制作。根据工装的设计图纸,对固定板、压板、定位支撑块等,均采用45钢,同时对四个支撑块零件进行调质处理,增强材料的硬度和抗拉强度,使其在于铝机壳零件接触时增强其耐磨性,同时不易变形。(1)固定板a加工,先下料、毛刀,后精车,根据机床的夹具安装尺寸在固定板a上加工出与其配合的止口,后上加工中心,加工与设备的安装孔、同时加工用于安装四个定位支撑块的定位槽、安装孔;(2)固定板b加工,先下料,毛刀、精车,后上加工中心,在加工中心上加出安装四个定位支撑块的定位槽及安装孔,同时加工出线座避开槽,便于零件的安放;(3)、压板加工,先下料,毛刀、精车,后再压板的四个方向,结合铝机壳的外形台阶,再压板上焊接四个支撑块,焊接牢靠,上加工中心对支撑块进行铣加工,使其压板上的支撑块形状与机壳外形定位台阶相匹配,便于加工时零件的安装紧固。(4)四个定位支撑块的加工,先根据图纸,对其进行下料,后进行粗车加工,后进行热处理,热处理硬度在HB230~260,后进行铣加工外形,根据铝机壳的结构外形,在四个定位支撑块上分别加工出相应得定位台阶。由于铝壳的四个方向台阶外形及定位不一样,所以分别加工出左上定位支撑块、左下定位支撑块、右上定位支撑块、右下定位支撑块;台阶加工完成后,分别钻攻四个定位支撑块的安装螺孔,每个定位支撑块均需要加工两个面,共四个螺孔;(5)、根据设计图纸,准备好安装紧固螺钉,对工装进行组装,取出固定板a,将四个定位支撑块分别放置到固定板a上相应的位置,注意四个定位支撑块的定位台阶位置方向,后用内六角螺钉紧固,后将固定板b固定在四个定位支撑块上,完成主体结构的组装;将连接好的主体结构安装到数控车床设备上,车加工铝机壳加工时的让刀槽,避免在加工时,刀具撞刀,干涉;加工完成后,上压板,完成工装的组装。如图3.2所示 。

图3.2 铝机壳加工笼型式的装夹结构
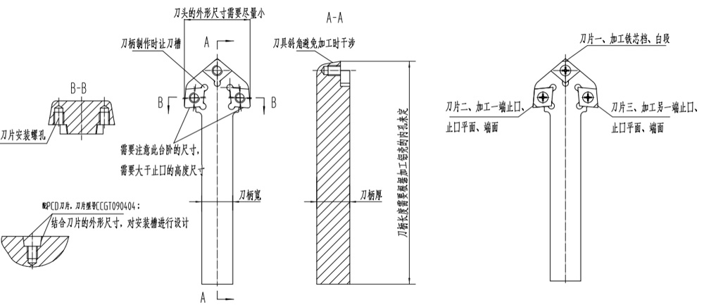
3、加工刀具的设计。由于考虑到机壳为外止口机壳,其需要加工的部位为两端止口、止口平面、端面、铁芯档、白段等几个部位。在设计刀具时,需要考虑外止口的台阶高度,避免刀具干涉,无法加工,所以加工的刀具无法采用常规的刀具进行制作,同时再加上机壳装夹工装长度、空间的限制,无法使用多刀位进行换刀加工,同时设计时需要结合铝壳内的尺寸大小,来设计刀柄大小,故结合上述的问题,需要设计专用的刀具,一个刀柄可安装三个刀片分别完成各加工部位的加工;如图3.3所示,一个刀头用于加工铁芯档、白段,另外两个刀头分别用于加工两端的外止口及止口平面、端面,从而完成外止口铝机壳的加工;采用专用于与铝壳加工的PCD刀片,结合刀片厂家提供的刀片数据,对刀柄进行设计,使其在满足刀片安装的前提下,优化刀柄的尺寸,让其尽可能的小,尽可能的缩小刀柄空间,同时设计时需要考虑其加工性,需要考虑其刀柄的可实现性,非标刀具量少在专业的刀具厂家制作生产成本高生产周期长,综合以上考虑,在设计时需要设计加工让刀槽。

图3.3 铝壳加工加工三刀位刀具结构
4、加工刀具的制作。先根据刀柄设计图纸,准备刀柄制作的材料,材料采用40Cr钢,这种钢的机械性能良好,属于中碳合金钢,淬火性良好,表面高频淬火后,而且能保存较软的芯部,因此耐冲击韧性好。在加工前先对原材料进行调质处理,调质硬度在HB220~HB250,后边在进行加工,先将其二位图纸转换为三维,模拟加工,并生成加工程序,对程序进行修正上加工中心上加工外形;加工时先加工刀柄正面,加工时先加工出让刀槽,铣刀采用3mm铣刀,加工好让刀槽后,自动走程序加工刀片安装的三个槽,并加工好用于安装刀片的M3.5的螺纹底孔,手动进行攻丝;加工完成正面后,加工反面外形,主要涉及到刀片加工时的刃角。加工完成后对刀片安装的位置进行高频淬火处理,淬火硬度控制在HRC28~32,保证刀柄刀头的硬度使其耐磨。后对其刀片安装的螺纹孔进行回牙处理,使其能顺利旋入刀片的固定螺钉。完成刀具刀柄的制作。如图3.4所示。

图 3.4刀柄实样结构
四、零件的加工确认
结合生产所需要的加工零件,现场对YA2-80外止口的铝壳机座进行加工。加工过程如图4.1所示;安装铝壳专用的PCD加工刀片,到刀柄,安装时需要注意刀刃的方向,再将刀柄安装到数控车床刀架上;将工装安装到数控车床上,对让刀槽进行进行确认看是否刀具刀头与工装相干涉,后安装待加工的零件,安装时注意方向,压板压紧,根据零件图纸编程,对刀,确认没有问题后进行精加工,加工过程中需要注意加工的异常情况,现场确认该工装及加工刀具可以实现一次装夹,一刀加工;现场对其零件进行检查确认,并记录加工检验数据,完全可以满足加工的质量要求,同时大大的提升了YA2-80的加工质量和效率。同时跟踪其热套定子及装配的效果,电机轴伸跳动,电机的灵活性均满足质量要求,所以该设计加工工艺、工装完全可以满足零件加工的质量要求。

图4.1 YA2-80外止口的铝壳机座进行加工过程
五、结论
本文所述的加工工艺结构有益效果为:所述加工工装结构制造成本低,使用方便,使用过程中能有效的缩短外止口铝壳机座的生产周期,降低操作工劳动强度,降低生产成本,一次装夹,一刀加工,使得两端止口、铁芯档、止口平面均一刀进行加工完成,有效的保证了机壳的同心度,有效的提升外止口铝壳机座的加工质量与效率。目前此类型的加工工艺工装已在我们公司内大力的推广,也获得了公司内操作工及领导的认可,大大的提升了外止口铝壳机座的加工效率和加工质量。